Používame cookies

Súbory cookie a ďalšie technológie sledovania používame na zlepšenie vášho zážitku z prehliadania našich webových stránok, na to, aby sme vám zobrazovali prispôsobený obsah a cielené reklamy, na analýzu návštevnosti našich webových stránok a na pochopenie toho, odkiaľ naši návštevníci prichádzajú. Viac info

Adresa Košice-Vyšné Opátske, Slovensko

Administratívna budova - Prešovská cesta

1 €

Proximityreal ponúka na predaj výnimočný projekt pre vlastné podnikanie alebo investíciu na skvelom mieste.

Využite administrativny a obchodný potenciál s prichádzajúcou fabrikou Volvo do Košíc.

Ponúkaná nehnuteľnosť je v súčasnej dobe základová doska s časťou obvodových múrov. Je vydané právoplatné stavebné povolenie, čiže realizovať stavbu viete ihneď a vytvoriť si sídlo podľa vlastných predstáv.

Premyslený projekt ponúka dva prístupy a to priamo z Prešovskej cesty alebo z ulice Drieňová. 

Dôsledne vyriešená vnútorná dispozícia ponúka priestor pre rôzne odvetvia podnikania :

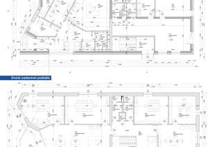
1.NP pozostáva zo strany Prešovskej ulice zo vstupného zádveria a recepcie , sociálneho zázemia, dvoch priestranných kanelárií a kuchynky

Vstup na 1.NP zo strany Drieňová ulica je plánovaný s odbytovou plochou, skladmi, sociálnym zázemím a dennou miestnosťou. Celová výmera 1.NP je 199,44m2.

Schodisko na 2.NP je riešené samostatným bočným vstupm, čo dáva možnosť aj budovu rozdeliť na samostatné prenájmy pre viac prevádzok.

2.NP je o výmere 237,51m2 a ponúka administratívne priestory a kancelárie so sociálnym zázemín a kuchynkou.

Na pozemku je plánovaných 7 vlastných parkovacích miest a má výmeru 515m2.  Samozrejmosťou sú inžinierske siete ako kalanizácia, el. prípojka, plynová prípojka, vodovod.

Výborné miesto vrámci Košíc s dobrým napojením na obchvat. Nehnuteľnosť sa predáva s platným stavebným povolením a komletnou projektovou dokumentáciou. Neviaznu na nej žiadne ťarchy a je ihneď voľná.

Radi Vám ju ukážeme osobne, neváhajte si dohodnúť obhliadku.

 

  • Priestory
  • Drieňová
  • Vo výstavbe

Vlastnosti

Status:
aktívne
Vlastníctvo:
osobné
Úžitková plocha:
515 m2
Zastavaná plocha:
238 m2
Podlahová plocha:
436 m2
Stav:
Vo výstavbe
Pozícia:
Prízemie

Informatívna úverová kalkulačka

Podobné nehnuteľnosti

Rampová, Košice-Sever, Slovensko

Administratívna budova - Rampová 4, Košice

  • 1983 m2
  • Priestory
990 000
Vodárenská, Košice-Sever, Slovensko

Exkluzívne obchodné a kancelárske priestory – Anička Residence, Košice

  • 153.73 m2
  • Priestory
384 900